Charmantes Denkmalobjekt aus 1906 – Zwei leerstehende verbundene Wohnungen im 1. OG – flexibel teilbar!
90762 Fürth, Etagenwohnung zum Kauf
Kontaktdaten
-
NameHerr Jonathan Schürgers
-
E-Mail Zentrale
-
E-Mail Direkt
-
Tel. Zentrale
-
Tel. Durchwahl
Objektdaten
-
Objekt ID2025-203
-
ObjekttypenEtagenwohnung, Wohnung
-
Adresse90762 Fürth
-
Etage1
-
Etagen im Haus4
-
Wohnfläche ca.115,02 m²
-
Zimmer6
-
Badezimmer1
-
Separate WC2
-
HeizungsartZentralheizung
-
Wesentlicher EnergieträgerGas
-
Baujahr1906
-
Zustandgepflegt
-
Käuferprovision3,57 % inklusive gesetzlicher Mehrwertsteuer
-
Kaufpreis345.000 EUR
Ausstattung / Merkmale
- ✓ Denkmalgeschützt
- ✓ Keller
- ✓ Separates WC
- ✓ WG-geeignet
Energieausweis
-
Energieausweisnicht erforderlich
Objektbeschreibung
Beschreibung
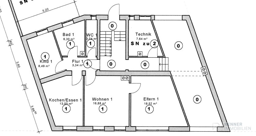
Diese außergewöhnliche Wohnimmobilie präsentiert sich in einem eindrucksvollen denkmalgeschützten Gebäude aus dem Jahr 1906 und vereint historischen Charme mit bemerkenswerter Flexibilität. Im ersten Obergeschoss wurden zwei eigenständige Wohnungen zu einer großzügigen Wohneinheit mit insgesamt ca. 115.02 Quadratmetern verbunden und schaffen damit ein Wohnensemble, das in seiner Form nur selten auf dem Markt zu finden ist. Die beiden Wohneinheiten mit ca. 51.50 Quadratmetern und ca. 63.52 Quadratmetern lassen sich bei Bedarf jederzeit wieder trennen, wodurch eine beeindruckende Bandbreite an Nutzungsmöglichkeiten entsteht, die sowohl für anspruchsvolle Eigennutzer als auch für strategisch denkende Kapitalanleger höchst attraktiv ist.
Die Wohnung bietet eine solide Grundlage, um individuelle Wohnvorstellungen zu realisieren. Die klassischen Altbaumerkmale und die klare Struktur der Räume schaffen ein vielseitig nutzbares Wohnumfeld, das unterschiedlichste Wohnkonzepte ermöglicht. Ob das bestehende Ambiente beibehalten oder ein modernes Gestaltungskonzept umgesetzt wird, bleibt vollkommen offen und erlaubt eine flexible Ausrichtung der zukünftigen Nutzung. Die großzügige Aufteilung bietet sich dabei ideal für verschiedene Lebenssituationen an, von großflächigem Wohnen bis hin zur Kombination aus Wohnen und Arbeiten oder der erneuten Trennung in zwei funktionale Einheiten.
Zusätzlichen Komfort bieten ein Technikraum im Erdgeschoss (zu Wohnung Nr. 2 zugehörig) sowie ein separater Kellerraum (zu Wohnung Nr. 2 und 3 zugehörig), die dem Objekt praktische Erweiterungen hinzufügen. Insgesamt zeichnet sich diese Immobilie durch ihre seltene Verbindung aus historischer Architektur, variablen Nutzungsmöglichkeiten und einer außergewöhnlichen Wohnfläche aus und bietet damit eine attraktive Grundlage für zahlreiche Wohnideen.
Ausstattung
- Denkmalgeschütztes Gebäude aus 1906
- Zwei Wohnungen (ca. 51,50 m² + ca. 63,52 m²) aktuell zu einer Einheit zusammengelegt
- Gesamtwohnfläche ca. 115,02 m²
- Flexible Nutzung – unkomplizierte Rückführung in zwei separate Wohnungen möglich
- Lage im 1. Obergeschoss
- Technikraum im Erdgeschoss (zu Wohnung Nr. 2 zugehörig)
- Kellerraum (zu Wohnung Nr. 2 und 3 zugehörig)
- Klassische Altbauarchitektur mit historischem Charme
- Großzügige Grundrissgestaltung und vielseitige Aufteilungsmöglichkeiten
Sonstige Informationen
Kontaktieren Sie uns noch heute, um einen individuellen Besichtigungstermin zu vereinbaren!
Unsere Telefonzeiten sind von sind von 8:30 Uhr bis 16:00 Uhr.
Lage
Die Immobilie befindet sich in einer Lage, die sich durch eine ausgesprochen gute Anbindung an wichtige Verkehrspunkte auszeichnet. Der Bahnhof ist in etwa sieben Minuten erreichbar und bietet damit ideale Voraussetzungen für Pendler sowie für alle, die eine unkomplizierte Mobilität im Alltag schätzen. Der Flughafen ist in rund zweiundzwanzig Minuten erreichbar und sorgt für eine komfortable Anbindung an weiter entfernte Ziele. Auch die Messe liegt mit einer Fahrtzeit von etwa neunundzwanzig Minuten in optimaler Entfernung und ermöglicht eine schnelle Erreichbarkeit dieses bedeutenden Wirtschaftsstandortes.
Darüber hinaus profitiert der Standort von der Nähe zur Fürther Innenstadt, die ein breites Angebot an Einkaufsmöglichkeiten, gastronomischen Einrichtungen und Dienstleistungen bereithält. Die Kombination aus zentraler Erreichbarkeit, vielseitigen Versorgungsangeboten und einem lebendigen städtischen Umfeld verleiht dieser Wohnlage eine besondere Attraktivität.
Zentrum 500 m
Die dargestellte Position der Immobilie ist nur eine ungefähre Angabe.




















