Ruhig und Zentral – Modernes 5-Zimmer Reiheneckhaus in Regensburg mit Garten, Terrasse und Balkon
93059 Regensburg, Reihenendhaus zum Kauf
Kontaktdaten
-
NameHerr Daniel Renner
-
AdresseTilsiter Straße 11
91207 Lauf -
E-Mail Zentrale
-
E-Mail Direkt
-
Tel. Durchwahl
-
Mobil
Objektdaten
-
Objekt ID2026-218
-
ObjekttypenHaus, Reihenendhaus
-
Adresse93059 Regensburg
-
Etagen im Haus3
-
Wohnfläche ca.140 m²
-
Nutzfläche ca.54,20 m²
-
Kellerfläche ca.54,20 m²
-
Grundstück ca.216 m²
-
Zimmer5
-
Schlafzimmer1
-
Badezimmer1
-
Separate WC2
-
Balkone1
-
Terrassen1
-
HeizungsartZentralheizung
-
Wesentlicher EnergieträgerGas
-
Baujahr2003
-
Zustandgepflegt
-
Stellplätze gesamt2
-
Stellplatz10.000 EUR (Anzahl: 1)
-
Garage25.000 EUR (Anzahl: 1)
-
Käuferprovision3,57 % inklusive gesetzlicher Mehrwertsteuer
-
Kaufpreis650.000 EUR
Ausstattung / Merkmale
- ✓ Balkon
- ✓ Keller
- ✓ Separates WC
- ✓ Terrasse
Energieausweis
-
EnergieausweistypVerbrauchsausweis
-
Gültig bis14.12.2035
-
GebäudeartWohngebäude
-
Baujahr lt. Energieausweis2003
-
PrimärenergieträgerGas
-
Endenergieverbrauch74,38 kWh/(m²·a)
-
EnergieeffizienzklasseB
Objektbeschreibung
Beschreibung
Dieses ansprechende Reiheneckhaus präsentiert sich als großzügiges und zugleich wohnliches Zuhause in einem angenehmen Wohnumfeld von Regensburg. Die Immobilie vereint ein durchdachtes Raumkonzept mit vielseitigen Außenflächen und bietet ideale Voraussetzungen für Familien oder Paare mit hohem Platzbedarf. Über die Jahre hinweg wurde das Haus fortlaufend instand gehalten und regelmäßig modernisiert, sodass es sich heute in einem gepflegten und wertstabilen Gesamtzustand präsentiert.
Auf einer Wohnfläche von ca. 140 m² stehen insgesamt 5 Zimmer zur Verfügung, die eine flexible Nutzung ermöglichen und Raum für individuelle Wohnkonzepte schaffen. Wohnen, Arbeiten, Lebensträume verwirklichen: Hier findet jede Lebenssituation ihren passenden Platz.
Der Mittelpunkt des Hauses ist der Wohn- und Essbereich mit direktem Zugang zum Garten mit Terrasse, der zu entspannten Stunden im Freien einlädt. Eine Loggia im Garten verspricht unvergessliche Sommerabende mit Ihren Liebsten. In der stilvollen, neuwertigen Markenküche können Hobbyköche Ihrer Kreativität freien Lauf lassen.
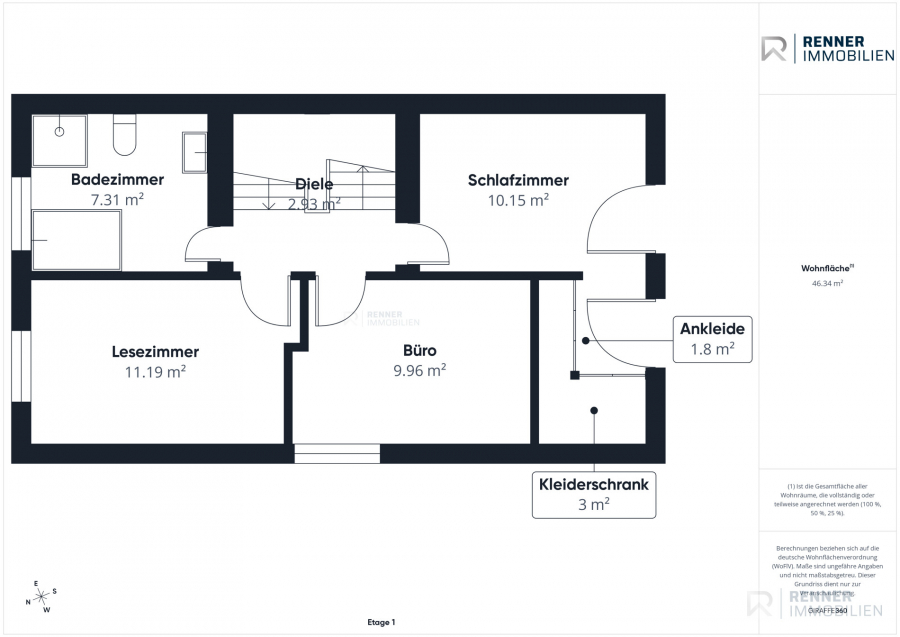
Auf den oberen beiden Etagen verteilen sich die übrigen Zimmer in einem gut durchdachten Grundriss. Im 1.OG findet sich das helle Badezimmer mit Eckbadewanne und großer Dusche, ein stilvoll eingerichtetes Lesezimmer, ein Home-Office sowie das Schlafzimmer mit bodentiefen Fenstern, französischem Balkon und einem luxuriösen, maßgefertigten Einbau-Kleiderschrank.
Das 2.OG, welches in eine stilvolle Galerie verwandelt wurde, bietet tagsüber den perfekten Raum für kreative Stunden und am Abend das Potential für unvergessliche Abende. Ein gut platzierter Beamer verwandelt den Raum in ein Heimkino. Zusätzlich verfügt diese Etage über eine Dachterrasse, die keine Wünsche offen lässt.
Mit einer Nutzfläche von ca. 54,20 m² im Keller, wird Ihnen ausreichend Stauraum geboten. Im Keller ist ein vollwertiger Hobbyraum mit Spiegelwand eingerichtet, der sich perfekt als Fitnessraum, Yogazimmer oder auch als Office eignet.
Abgerundet wird das Angebot durch eine Garage inkl. Wallbox, sowie einen zusätzlichen Stellplatz direkt vor dem Haus. Komfortables und Flexibles Parken ist also garantiert.
Insgesamt überzeugt dieses Reiheneckhaus durch seinen gepflegten Zustand, Großzügigkeit, und die vielseitige Raumaufteilung. Die attraktiven Außenflächen runden das Gesamtbild ab und machen dieses Objekt zu einem idealen Zuhause für alle, die Ihren Wohntraum in einer Top-Lage in Regensburg verwirklichen wollen.
Falls Ihr Interesse geweckt wurde, können Sie sich ganz bequem von zuhause aus über den virtuellen Rundgang einen ersten Eindruck verschaffen:
https://tour.giraffe360.com/50f1608eeb54410893bcfec327653a7a/?lsf=1
Außerdem laden wir Sie dazu ein einen Video zur Immobilie anzusehen. Kopieren Sie dafür folgenden Link in Ihren Browser:
https://vimeo.com/1151562385?share=copy&fl=sv&fe=ci
Ausstattung
- Reiheneckhaus in Regensburg
- Wohnfläche ca. 140 m²
- Nutzfläche ca. 54,20 m²
- 5 Zimmer mit vielseitigen Nutzungsmöglichkeiten
- Keller mit praktischen Neben und Abstellflächen
- Garten mit Terrasse
- Loggia sowie zusätzlicher Balkon
- Gartenhaus vorhanden
- Beheizung über Erdgas Gasheizung
- Garage vorhanden (Kaufpreis zzgl. 25.000 €)
- Stellplatz vorhanden (Kaufpreis zzgl. 10.000 €)
- Familienfreundliches Wohnumfeld mit guter Infrastruktur
Modernisierungen und Renovierungen im Überblick:
- 2003 Baujahr
- 2005 Errichtung eines Geräteschuppens im Garten
- 2006 Pflasterung des Stellplatzes
- 2008 Vorratsraum neu verputzt und gestrichen
- 2009 Installation einer Markise im Garten
- 2009 Anlage eines Rondells im Garten
- 2010 Flur im 1. Obergeschoss neu gestrichen
- 2011 Kinderzimmer Nord neu gestrichen
- 2012 Schlafzimmer neu gestrichen
- 2013 Einbau von Lichtschutzabdeckungen an Kellerfenstern sowie Insektenschutz
- 2014 Studio, Badezimmer sowie Eingangsbereich neu gestrichen
- 2014 Fassade neu gestrichen
- 2014 Installation eines Katzennetzes am Balkon
- 2015 Erneuerung des Dachs der Gartenhütte nach Sturmschaden
- 2016 Einbau eines hochwertigen begehbaren Kleiderschranks im Schlafzimmer
- 2017 Vorratskammer und Kellerabgang neu gestrichen
- 2018 Erneuerung der Fensterdichtungen im gesamten Haus
- 2018 Erneuerung der Stromversorgung der Garage sowie Einbau einer Wallbox
- 2018 Küche neu gestrichen
- 2018 Teilweise Neuverlegung der Elektrik in der Küche
- 2018 Umrüstung des Küchenfensters auf Elektro (im Zuge der neuen Küche)
- 2018 Einbau einer neuen Küche
- 2020 Erneuerung der Holztrennwand im Garten zum Nachbargrundstück
- 2021 Neugestaltung der Gartenterrasse und der Laube
- 2021 Herstellung einer zusätzlichen Nord-Terrasse
- 2021 Erneuerung des Vordachs
- 2021 Überprüfung der Dachdichtheit sowie Reparatur der Dachfolie
- 2021 Büro neu gestrichen und neuer Bodenbelag
- 2022 Einbau einer Kalkwasser-Filteranlage (AQON Pure Home Premium 15)
- 2024 Keller-Hobbyraum neu gestrichen
- 2024 Heizungsanlage gereinigt und neu eingestellt
- 2025 Glasfaseranschluss ins Haus gelegt
- 2025 Erneuerung der Armatur am Waschbecken in der Küche
Regelmäßige Wartungen:
- Jährliche Heizungswartung
- Regelmäßige Feuerstättenschau
Sonstige Informationen
Besichtigungen sind ab Anfang Februar möglich.
Kontaktieren Sie uns noch heute, um einen individuellen Besichtigungstermin zu vereinbaren!
- E-Mail: anfragen@renner.immo
- Telefon: 0911 88183909
Unsere Telefonzeiten sind von sind von 8:30 Uhr bis 16:00 Uhr.
Lage
Die Immobilie befindet sich in einem gewachsenen Wohnumfeld in direkter Nähe zur Innenstadt von Regensburg, das sich durch seine Familienfreundlichkeit und eine gut ausgebaute Infrastruktur auszeichnet.
Kindergärten sowie Schulen aller Bildungsstufen befinden sich in komfortabler Nähe und sind im Alltag bequem erreichbar. Sowohl Grundschule, Realschule als auch Gymnasium liegen in kurzer Distanz und machen den Standort insbesondere für Familien mit Kindern attraktiv.
Für die tägliche Nahversorgung ist ebenfalls bestens gesorgt. Netto, Aldi Süd und Edeka befinden sich in direkter Nähe und ermöglichen kurze Wege für Einkäufe des täglichen Bedarfs.
Das Regensburger Stadtzentrum ist in unmittelbarer Nähe und sowohl zu Fuß erreichbar als auch gut an den Nahverkehr angebunden. Auch wichtige Verkehrsknotenpunkte wie der Bahnhof sind in angemessener Fahrzeit erreichbar und gewährleisten eine gute regionale sowie überregionale Anbindung. Ergänzend dazu ist der Hafen zügig erreichbar und unterstreicht die verkehrlich günstige Lage innerhalb des Stadtgebiets.
Die Nähe zur Donau lädt zu langen Spaziergängen und ausführlichen Joggingrunden am Fluss ein.
Insgesamt bietet die Lage eine ausgewogene Kombination aus ruhigem Wohnen, guter Versorgung, kurzen Wegen zu Bildungseinrichtungen sowie einer guten Anbindung und schafft damit ideale Voraussetzungen für ein komfortables und alltagstaugliches Wohnumfeld.
Kindergarten 600 m | Grundschule 800 m | Realschule 800 m | Gymnasium 1,20 km | Zentrum 3,20 km
Die dargestellte Position der Immobilie ist nur eine ungefähre Angabe.













































